Louis Miquel/LANAA architectes et l’immeuble Winter
La mémoire en œuvre. Recherche et archives d’architecture.
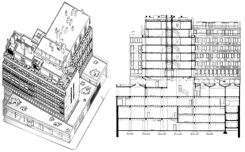
Pour aborder la question de la rénovation et des enjeux patrimoniaux de l’immeuble Winter de Louis Miquel, rue Saint-Ambroise, Paris 11e (1963-1966), l’intervention s’attachera, dans un premier temps, à replacer la réalisation dans son contexte de production.
Rénovation et enjeux patrimoniaux : Louis Miquel et l’immeuble Winter - LANAA : l’immeuble Winter rue Saint-Ambroise, Paris 11e (1963-1966)
Tout en le rapprochant des autres réalisations de Louis Miquel, nous nous intéresserons à sa mise en œuvre ainsi qu’à son implantation dans le quartier Saint-Ambroise. Dans un second temps, nous verrons comment l’apport du Centre d’archives d’architecture contemporaine a nourri le projet de rénovation mené par l’agence.
Le chantier étant en cours depuis plusieurs mois, nous nous appuierons sur celui-ci pour évoquer comment se tissent concrètement les liens entre les exigences thermiques et réglementaires contemporaines et l’architecture préexistante.
Intervenants :
- Nicolas André, architecte associé et enseignant à l'École Nationale Supérieure d'Architecture de Paris-Belleville (ENSAPB) ;
- Thibault Gaillard, architecte DE, collaborateur du projet de l’immeuble Winter ;
- Théo Farats, architecte DE, collaborateur du projet de l’immeuble Winter.
Informations pratiques
-
Hall about
7 avenue Albert de Mun
Accès côté jardins
Paris 16e
Métro Iéna ou Trocadéro
Visuel 2 - Dessins Fonds Miquel
Visuel 1 - Axonométries menuiseries LANAA